Brown Garage

Durham, NC
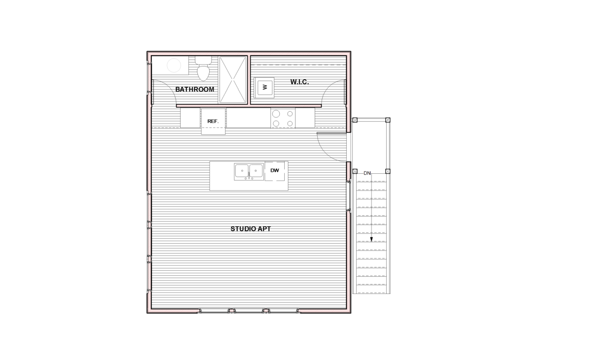
2-car garage with a loft apartment on second floor.

Back to project gallery

ARCHITECT

Jody Brown Architecture, pllc.

SERVICES PROVIDED

Design